Properties

Browse or get in touch to schedule a walkthrough.

  • Nearby me
Price range

Popular features

Community features

Property features

Waterfront

View

Exterior Features

Interior Features

Style

10000 properties match your criteria

Updated 1 minute ago

E-Alert name

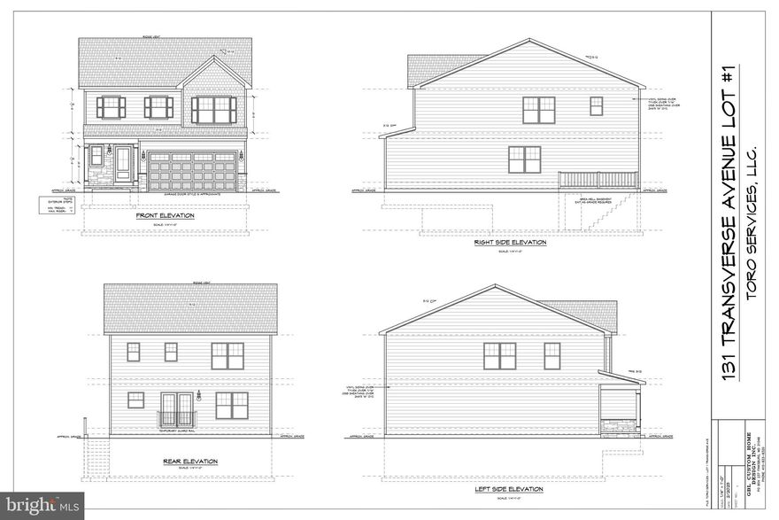
Looking for the perfect home, then DON'T MISS OUT on this wonderful opportunity, with only one lot remaining! Now under construction BRAND NEW single-family colonial style home with open floor plan, an estimated 2200 sqft of living space, with 4 beds, 2.5 baths, a double car garage, and loaded with custom features. This amazing home offers an inviting open floor plan perfect for entertaining. The dining room adjoints the custom designed kitchen featuring a large island, quartz counter tops with pendant lights and stainless steel appliances great for hosting your holiday meals with family and friends. The beautiful sliding door overlooks the lovely back yard perfect for kids, and pets to play in, with plenty of space for outdoor entertaining. The second floor features an elegant master suite with a very luxurious master bath, double vanities with quartz countertops. There are three additional spacious bedrooms, all of which feature ceiling fans and lots of closet space. Conveniently share a custom-designed hall bath with designer finishes and dual sinks. This floor also includes second floor laundry room. There is also a great open staircase with custom designer lighting another wonderful feature this home offers an oversized garage with plenty of room for storage and a walkout basement with plenty of room for your own finishes. Estimated time to be completed October 2023. Don't miss this opportunity to pick your colors and your options and make this home your home!!Please see the photos of similar home to be built. Make it yours today! Showing by appointment only!
#MDBC2062726

MIDDLE RIVER

131 TRANSVERSE AVENUE

4 Beds

2 Baths

2,200 Sq.Ft.

$494,900

MLS#: MDBC2062726

Experience modern living in this stunning 4-bedroom, 3-bath single-family home. Property has updated, featuring a brand-new kitchen and bathrooms, fresh paint throughout, newly laid concrete steps at the entrance, and a state-of-the-art central air system. Adding to its allure, the property boasts fully owned solar panels, ensuring energy efficiency and long-term savings.
#MDBA2102264

BALTIMORE

6611 FAIR OAKS AVENUE

4 Beds

3 Baths

1,136 Sq.Ft.

$279,900

MLS#: MDBA2102264

Perfectly positioned three level townhome situated in a convenient commuter location! The open concept main level provides a living and dining room combination, ideal for entertaining and everyday comfort. Prepare your favorite recipes in the kitchen appointed with ample cabinetry and breakfast area with deck access through a sliding glass door. The upper level hosts two sizable bedrooms, each with vaulted ceilings. The primary bedroom highlights two closets, a built-in sink vanity for convenience, and private access to the full bath. Spend quality time with loved ones in the lower level family room featuring a cozy wood-burning fireplace and a full bath. Additionally, the lower level offers the laundry room.  Enjoy barbecues on the deck overlooking the backyard and open community space. 1 assigned parking space with guest parking available. Easy access to US-29, Us-40, I-70, and I-695. Outdoor recreation awaits at nearby Patapsco Valley State Park. 

Property being sold as a Short Sale. Third Party processor required. All offers and real estate agent commissions are subject to 3rd party mortgage company approval and subject to the Seller(s) acceptance of those approval terms. Property is being sold as-is with no warranties expressed or implied. Home inspections are for informational purposes only. Buyer may be responsible for any of their own lender required repairs.
#MDBC2053658

WINDSOR MILL

5 TRIPLE CROWN COURT

2 Beds

2 Baths

1,284 Sq.Ft.

$230,000

MLS#: MDBC2053658

A must see! 5426 Litany Ln features spacious rooms, plenty of square footage and stylish finishes throughout. Lots of natural light, space for entertaining and a great location make this property ideal for any home buyer. As you enter the living room, newly installed contemporary flooring make the space feel expansive and fresh. The kitchen features lots of cabinet space, a pantry and stainless steel appliances. This home provides the perfect blank canvas to make your own as it has a neutral, freshly painted color palette and modern appeal. Lush greenery borders the back yard and provides a great space for relaxing. A convenient patio off of the family room can easily be enjoyed throughout the year. With an attached garage, pretty curb appeal and large front yard it's easy to envision this home being yours. Hurry and buy now so that you will have time to enjoy the community pool before the end of Summer! Enjoy an excellent location convenient to White Marsh attractions, local hospital, restaurants and shopping as well as 695 and 95. Schedule your showing now!
#MDBC2005560

BALTIMORE

5426 LITANY LANE

3 Beds

1 Baths

1,674 Sq.Ft.

$275,000

MLS#: MDBC2005560

Motivated sellers. Commuters dream- this beauty is tucked in a private neighborhood but yet close to the beltway. The house features three bedrooms, 2.5 baths, walkout basement with big family room and office. The huge back yard is backed to a green area. The driveway is big enough to park 7 to 8 cars. Enjoy your summer at the private back yard or have a bbq party to entertain your friends and family with no stress for accommodation.See it yourself and call this beauty home!The house is within a short distance to Andrews airforce base, half a mile from 495 exit, short distance to DC and Virginia.Walking distance to Magic foundation chartered school and Benjamin Foulios art school.
#MDPG542560

MORNINGSIDE

4412 MORGAN ROAD

3 Beds

2 Baths

1,036 Sq.Ft.

$1,800

MLS#: MDPG542560

Welcome to Oxford Square! When you enter this 4-story townhome you'll find a main level bedroom, full bathroom and 2 car garage. The next level features a gourmet kitchen, dining and living area, and a large deck for outdoor entertaining. Upstairs you will find the primary suite, with an oversized walk-in closet and ensuite bathroom with dual vanities. This level also has two more generously sized bedrooms, another full bathroom, and laundry. Lastly the top level boasts a large extra living space, half bath, and another deck for entertaining. Conveniently located close to all major highways. Walking distance to the local elementary and middle schools. Rent includes access to the community pool and fitness center. Tenant is responsible for all utilities.
#MDHW2033656

HANOVER

7036 FOXTON WAY

4 Beds

3 Baths

2,332 Sq.Ft.

$4,500

MLS#: MDHW2033656

Newly renovated 2BR/1.5BA row home on a quiet one-way street in the vibrant Remington neighborhood! 
This home features new LVP flooring, new kitchen w stainless appliances and quartz counters. custom tiled bathroom, recessed lighting, and has been freshly painted. The rear patio could be used as a parking pad for a small vehicle.  Enjoy all of the updates this home has to offer and being located around the corner from all of the dining options at the R House and access to I-83!
#MDBA2091262

BALTIMORE

2829 MILES AVENUE

2 Beds

1 Baths

812 Sq.Ft.

$1,700

MLS#: MDBA2091262

This Charming Cape Cod bursts so much character and is ready for you to call it yours.  Sitting on just over a half an acre with mature landscaping that creates a private backyard retreat in a quiet neighborhood with many side streets to walk and bike this home has it all inside and out.   The first floor consists of a  kitchen/dining combo, living room, and primary suite, it boasts beautiful hardwood floors throughout the lower level with the exception of the primary bathroom.   Get cozy in the living room by the lovely brick wood burning fireplace, or enjoy the open layout of the kitchen and dining area while entertaining guests and making meals and memories.  The laundry area can be found in the primary bathroom on the lower level as well, with the washer and dryer you will find an electric instant hot water heater.   Upstairs there are two more bedrooms separated by a hall bathroom, the upstairs has been completed with brand new carpet in the last week!!!   The entire interior of the home has been freshly painted and is a blank canvas for you to add your personal touches.  This home has been lovingly maintained and cherished and it shows.   Schedule your appointment today, this really is the one you don't want to miss!!
#MDWC2011008

SALISBURY

625 BARNSDALE DRIVE

3 Beds

2 Baths

1,200 Sq.Ft.

$255,000

MLS#: MDWC2011008

NO ADDITIONAL SHOWINGS BEYOND TODAY 7/20/2023.   HIGHEST AND BEST .OFFERS BY 5 PM ON 7/20/2023.  FINAL DECISION TO BE MADE 7/21/2023 BY 12 NOON.  THANK YOU FOR SHOWING.



Investor/Rehab Opportunity! 3 bedroom, 1.5 bath townhome located close to Fort Meade/NSA and just a 5 minute drive from Odenton Town Center! Easy access to major routes MD-32, Balt-Wash Parkway, I-95!
Newer Roof & Windows. Full unfinished basement offers opportunity for possible additional bedrooms/bathroom!
Kitchen & Main Bath need full remodel. HVAC system non-functional.
Sold AS-IS. Seller makes no warranties & no repairs.
Owner is Showing Contact
#MDAA2064776

SEVERN

1804 GRAYBIRD COURT

3 Beds

1 Baths

1,160 Sq.Ft.

$180,000

MLS#: MDAA2064776

* OFFER DEADLINE: MONDAY, 09/18 @ 6:00 PM - PLEASE SUBMIT ALL OFFERS BY DEADLINE * Investor's Dream At University of Maryland! This spacious 3-level townhouse/condo offers an incredible opportunity. Located just 1/2 mile from the University of Maryland's front gate, this updated end-unit features 5 bedrooms, 2 full baths, and a rough-in for an additional half bath. With nearly 1800 square feet of living space, it's the largest model in the community. Just FRESHLY PAINTED with BRAND NEW carpet throughout the main and upper levels, this property is move-in ready. The main level includes a generous living/dining area, a fully equipped kitchen with stainless steel appliances, including a built-in microwave, oak wood cabinets with new hardware, and a large tile composite floor. Additionally, you'll find an entry-level bedroom with a walk-in closet, which has the rough-in for a future half bath. Upstairs, three spacious bedrooms await, one with two walk-in closets, and an updated full hall bath with tub/shower and ceramic tile floor and surround completes this level. The walk-up lower level, featuring wall-to-wall carpet in the living area, is licensed by College Park as the 5th bedroom for rental apartment purposes. It includes the second full bathroom, a large utility/laundry/storage room, and an exit to the bulkhead door at the front of the home. Windows and HVAC systems were updated within the last 5-6 years, and a new dryer was installed in 2023. The condo association covers roof replacement, which is next scheduled again for 2033, as well as exterior siding, lawn maintenance and snow removal. For investors, this unit has tremendous income potential, with a prospective rental income of over $3,000 per month. This is a very attractive and lucrative investment opportunity. Don't miss out on this chance to own a prime rental property just a few blocks from the University of Maryland! Very walkable with lots of shopping, restaurants and parks close by.
#MDPG2090264

COLLEGE PARK

4835 BERWYN HOUSE ROAD

5 Beds

2 Baths

1,792 Sq.Ft.

$359,900

MLS#: MDPG2090264

Bright and charming 3-levels, 3 bedrooms plus a den, 3.5 baths spacious townhome is ready for you, large master bedroom with full bath, beautiful hardwood floor, big fenced yard w/patio & play patio & play area. Close-in, convenient Derwood (Rockville/Shady Grove) just a mile to metro, Easy access to 270, ICC, 495, MARC, shops, schools, restaurants, library, golf, Lake Needwood, King Farm! Text William for questions.
#MDMC682162

DERWOOD

15905 YUKON LANE

3 Beds

3 Baths

1,890 Sq.Ft.

$2,075

MLS#: MDMC682162

Stunning 3 bedroom townhome in Gilmer Woods conveniently located close to shopping, I-95, APG, and schools. This home is extremely clean and function .. There is a eat in kitchen with room for a table with chef's cut-out to overlook the family, half bathroom, huge family room area that features nice laminate flooring with sliding glass leading to a deck with great tree views. The upper level boasts 3 spacious bedrooms and 2 baths . Huge primary suite with an oversized walk in closet with lots of natural light. Partially finished lower level featuring full bathroom, laundry, rec room, and walk-out sliders leading to the patio and fenced backyard. This is a turn key property.
#MDHR2027624

BELCAMP

4261 GOODSON COURT

3 Beds

2 Baths

1,544 Sq.Ft.

$270,000

MLS#: MDHR2027624

We could NOT wait to share this beautiful property.  This home has so many updates and carefully thought out features. Upon arrival you will notice the new driveway, 2 car garage and new  ProVia front door that comes with a lifetime warranty.  Upon entrance you will walk across gorgeous tigerwood Brazilian hard wood floors.  Main floor offers an office, formal dinning room, eat in kitchen, living room and laundry room. The living room has a wood burning brick fireplace for those cool winter nights.  Kitchen is complete with a large island and all the amenities including a pantry.  Upstairs you will find 4 bedrooms with brand new carpet - 2 beautiful newly updated bathrooms.  Ever taken an aromatherapy shower? You can now with the brand new moen shower installed in the primary suite.  So many wonderful features inside this home but you will probably spend more time outside.  16x20 screened in porch connected to a reinforced deck that is built and waiting for you to add a hot tub!  Prefer swimming over soaking? We have that covered. The fenced in area is beautifully landscaped to include a 3.5ft x 8ft rock waterfall into the gunite pool.  The swim ledge is a great place to relax as you enjoy nothing but country views and the music you can add to the speakers that are already wired along the fence.  You could stay out there all day and night as the heat-cool feature lets you customize your temperatures. There is a freshly painted shed with a new roof to house all of your pool supplies.  There is more storage in the basement of the home.  You have a finished newly painted basement with 8' ceilings and new carpet  plus a 23x13 workshop/storage room.    We could go on and on but it may be time to just schedule your private tour! Call your favorite realtor!!
#MDCR2010686

WESTMINSTER

1511 KNOX COURT

4 Beds

2 Baths

2,404 Sq.Ft.

$649,900

MLS#: MDCR2010686

NO MORE SHOWING MULTIPLE OFFERS RECEIVED!  This thoughtfully cared for end-unit townhome is move in ready awaiting it's new owner! This home offers a spacious master bedroom with an en suite, complemented by two sizable bedrooms. As an added bonus, this property includes hardwood on the stairs and throughout the main level, which opens to an layout ideal for entertaining.
#MDPG571126

UPPER MARLBORO

4616 COLONEL FENWICK PLACE 391

3 Beds

2 Baths

2,032 Sq.Ft.

$275,000

MLS#: MDPG571126

Turnkey, cozy three-level townhouse in a quiet neighborhood that will not last long. Updated eat-in kitchen with granite countertops and stainless steel appliances. Remodeled master bedroom and bathroom, beautifully finished recreation room, tons of storage space, spacious fenced backyard with pergola. New roof (5y) and new efficient HVAC system (3y) controlled by the NEST. Short commutes 495/270.
#1000474754

BETHESDA

6757 SURREYWOOD LANE

3 Beds

2 Baths

N/A

$649,900

MLS#: 1000474754

1 ... 602 603 604 605 606 ... 666
* Listings identified with the FMLS IDX logo come from FMLS and are held by brokerage firms other than the owner of this website. The listing brokerage is identified in any listing details. Information is deemed reliable but is not guaranteed. If you believe any FMLS listing contains material that infringes your copyrighted work please click here to review our DMCA policy and learn how to submit a takedown request. © 2024. First Multiple Listing Service, Inc.
 - property

Send a message

Message successfully sent.

Your message

What is 3 + 4 ?

Reason for contacting?

Sign Out

Virtual Assistant

Would you like to take the next step with this property? We can help you schedule a showing or virtual tour, or send you more details.

Yes, I would like more information.

Thank You for Your Reply, One of Our Agents will contact you as soon as possible

No, maybe later.

Thank you, you can always contact me via email, phone number or through the contact form.

Realhub AI

Lucy - Your AI-Powered Realtor

Update Your Temporary Password

Personalize your search

Enter your email and we'll notify you immediately when new listings match what you're looking for.

or enter email address

Already have an account ? Login here

Continue your home search

Already have an account ? Login here

We use cookies

We use cookies primarily for analytics to enhance your experience. By accepting, you agree to our use of these cookies. You can manage your preferences or learn more about our cookies policy.